Projet réalisé par l’agence MGAU, collaboration sur la Phase PC, PRO.
Nous proposons un unique corps de bâtiment qui s’étire d’est en ouest sur tout le long de la parcelle; il est divisé en trois cages d’escaliers A,B et C qui accueillent les logements. Puis côté rue Edouard Buffard, un bâtiment contigu mais dans un registre architectural légèrement différent accueille le programme de bureaux. Sur la limite orientale de la parcelle, il se retourne au sud jusqu’à l’allée de Budapest.
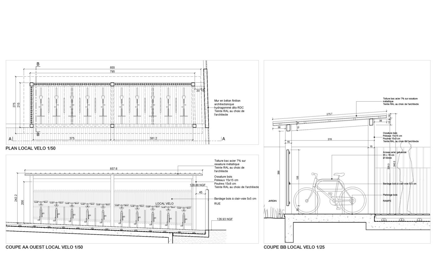
Cette organisation morphologique permet de dégager un vaste jardin de pleine terre au sud de la parcelle, à la fois visible de toutes parts depuis l’opération et en synergie avec la végétalisation de l’allée de Budapest. Au nord de la parcelle, un jardin inaccessible de 5m de large est ménagé qui s’associe aux deux jardins des lots 8F-1 et 8F-2.Sur la rue de Stockholm, un local vélo crée une jonction volumétrique avec un local technique du lot 8F-1.
Le bâtiment de logements suit un principe d’alternance de volumes hauts et larges accueillant les distributions verticales ainsi que des logements d’angle à orientation multiples ; ils sont espacés de8,5m les uns des autres et reliés par des volumes plus fins et plus bas, en léger retrait par rapport aunu des façades et qui accueillent des logements traversants et de larges terrasses.
Ce principe volumétrique permet à la fois de fragmenter les façades nord et sud, de découper les volumes à l’instar des constructions voisines mais surtout de créer des logements de qualités à double ou triple orientations, bénéficiant tous d’un ensoleillement généreux et d’un rapport de proximité direct avec le jardin sud.
Le bâtiment de bureaux, à l’est suit la même logique que le reste de l’opération, mais avec un traitement de façade qui permet de le distinguer des logements.




