Dernière mise à jour:
En collaboration avec Juste Architecture ( Mandataire )
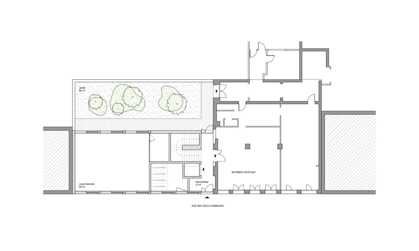
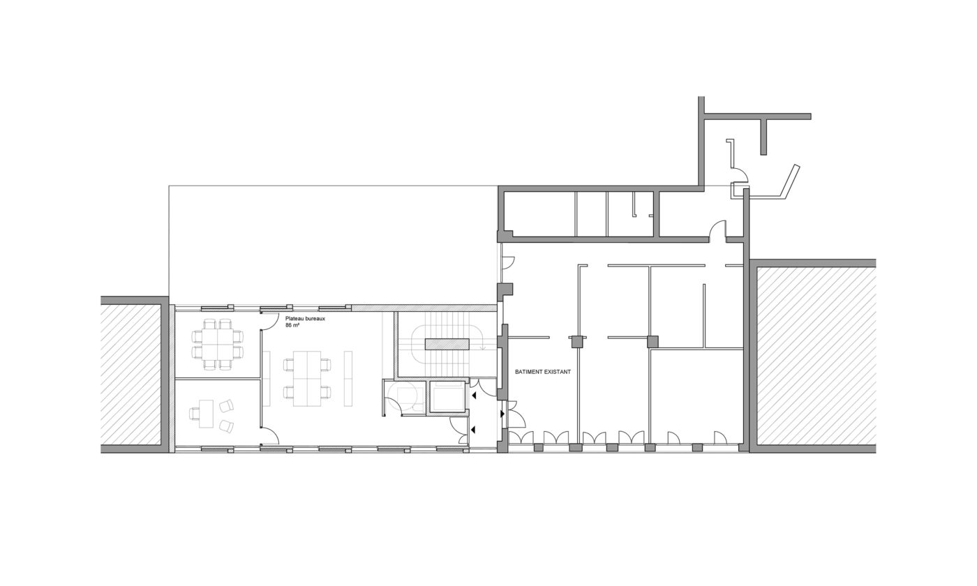
Notre mission consiste à requalifier un ensemble immobilier au cœur de Vincennes. La complexité de l’exercice réside dans la composition des différentes entités qui existent actuellement et qui doivent conserver des accès dans la future organisation spatiale.
Le PLU avec ses nombreuses contraintes nous pousse à optimiser l’implantation de l’extension notamment, afin de générer le maximum de surface locative pour notre client. La création d’une circulation verticale avec ascenseur permet de desservie tous les plateaux, que ce soit l’existant ou le neuf.




