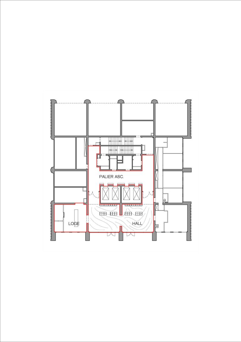
Le syndic de copropriété de la Tour Cortina a sollicité notre structure afin de réaménager le hall d’entrée de son immeuble.
La rénovation permettra de moderniser cet espace central de l’immeuble en lui apportant une esthétique élégante, chaleureuse et contemporaine. Des matériaux durables et résistants ont été sélectionnés afin de garantir une excellente tenue dans le temps face aux passages quotidiens. Le sol sera réalisé en carreaux de céramique haute résistance, bénéficiant d’un classement QB UPEC élevé, parfaitement adapté aux usages intensifs. Les murs seront protégés par un enduit résine haute performance, offrant une grande résistance aux chocs tout en assurant une finition soignée.
La façade vitrée sera entièrement remplacée afin d’améliorer l’isolation du hall tout en respectant les normes thermiques actuelles. Le nouveau vitrage en verre sécurité garantira à la fois sécurité, performance thermique et durabilité.
Le projet prévoit également la réorganisation et le remplacement des boîtes aux lettres, en conservant leur nombre initial tout en intégrant des modules dédiés à la réception des colis. Un espace d’affichage clair et lisible pour les informations de la copropriété sera également intégré.
Enfin, le faux plafond sera animé par une composition de tubes métalliques suspendus, disposés selon une implantation courbe. Cet élément architectural apportera rythme et identité à l’espace, contribuant à créer un hall d’entrée accueillant, contemporain et distinctif.




